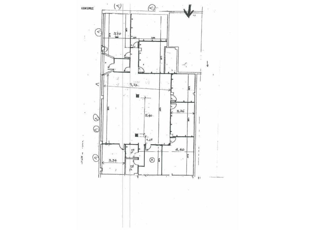
ES UN MAGNIFICO LOCAL DE 800M2, QUE INICIALMENTE SE DIVIDIO EN DOS Y AHORA SON TRES, PERO PUEDEN VOLVER A JUNTARSE EN CASO DE NECESIDAD.
ESTA FLEXIBILIDAD DE ESPACIOS ES MUY POCO HABITUAL DE ENCONTRAR Y MENOS EN LOCALES DE ESTA CATEGORIA, TODO EXTERIOR, ESQUINA Y CON CUATRO ORIENTACIONES.
POR QUE NO ES LO MISMO MOVER EL TABIQUE DE UN PISO PARA AMPLIAR EL SALON QUE MOVER UN TABIQUE EN ESTE LOCAL PARA DISPONER DE UN ESPACIO QUE PERMITA DESARROLLAR TU ACTIVIAD CON TODO TIPO DE COMODIDADES Y LO MEJOR DE TODO: CUALQUIER COMBINACIÓN YA SEA TODO JUNTO O POR SEPARADO ES UNA COMBINACIÓN GANADORA.
* suministros y comunidad no incluidos*

Esta información que se proporciona aquí está sujeta a errores y no forma parte de ningún contrato. La oferta se puede cambiar o retirar sin previo aviso. Los precios no incluyen los costes de compra