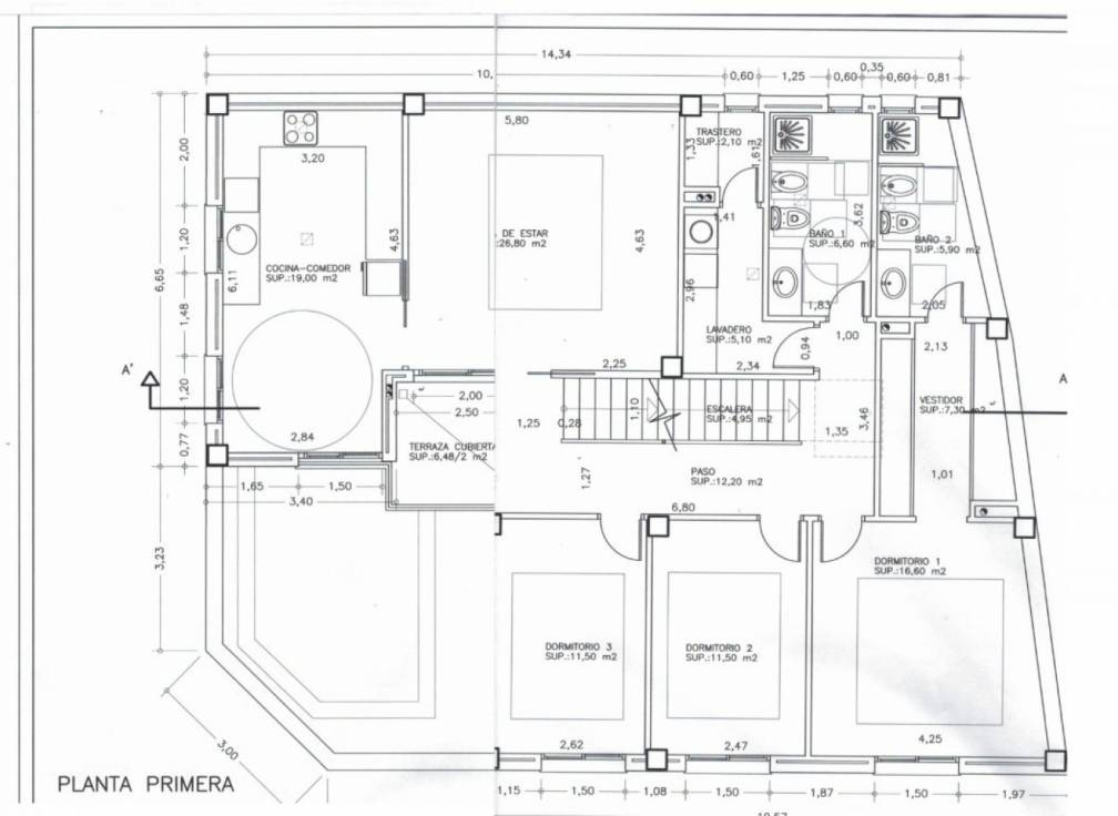
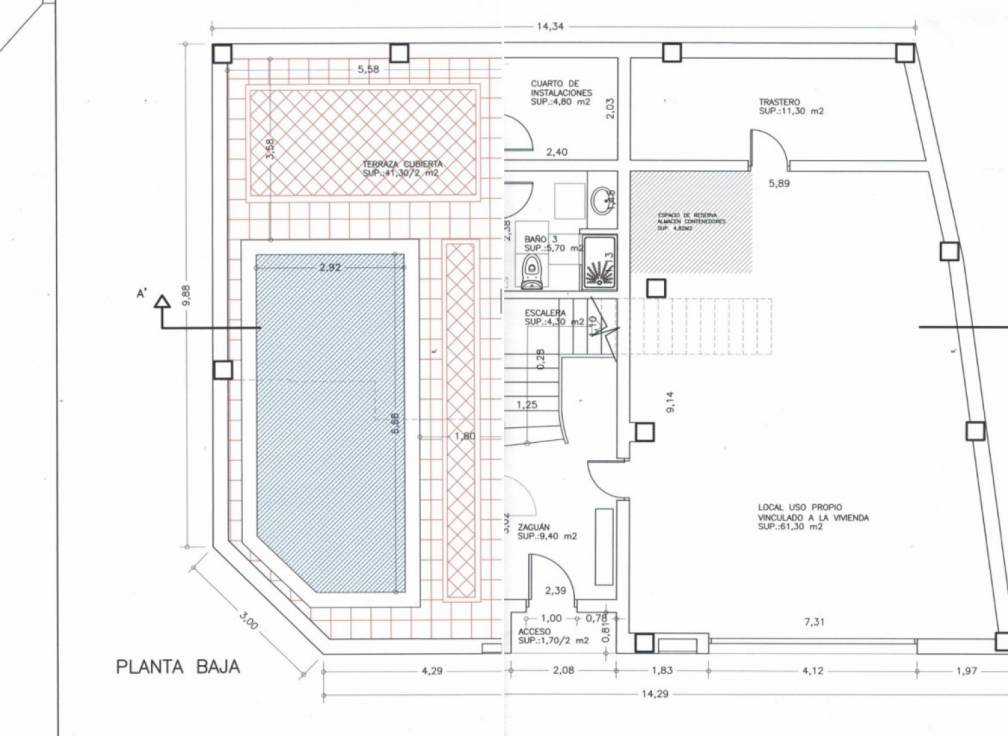
Estupendo solar a 3 calles con proyecto para construir una vivienda con piscina. La parcela actualmente está ya hecha solar. Calle muy tranquila a tan solo 5 minutos de la Plaza de la Comunidad Valenciana circulando por la Rambla. . . La vivienda proyectada consta de dos plantas:. . Planta baja: con local para vehículos, zaguán de acceso, piscina, habitación instalaciones, etc.. Planta primera: Amplio salón con cocina todo ellos de unos 50m2, además 3 dormitorios, uno de ellos principal con vestidor y baño onsuite y un baño para dar servicio al resto de la casa.. . Si eliges hacerte esta casa te ahorras: El derribo que ya está hecho, y el proyecto básico (todo ello valorado en unos 15.000EUR). . ------------------------------------------------------------------------------------------------------------------------------. Por mandato expreso del propietario, comercializamos este inmueble en exclusiva, lo que le garantiza el acceso a toda la información, a un servicio de calidad, un trato fácil, sencillo y sin interferencias de terceros. Por este motivo, se ruega no molestar al propietario, a los ocupantes de la propiedad o a los vecinos. Muchas gracias por su comprensión. Si usted es agente inmobiliario y tiene un cliente para este inmueble, llámenos: estaremos encantados de colaborar.. . .

Esta información que se proporciona aquí está sujeta a errores y no forma parte de ningún contrato. La oferta se puede cambiar o retirar sin previo aviso. Los precios no incluyen los costes de compra
En vivienda plus trabajamos de manera incansable para que usted tenga a su disposición un amplio catálogo de propiedades con la mejor relación calidad-precio posible. Su bienestar, es nuestra recompensa
Ver todas las propiedadesDirección
C/ Poeta Miguel Hernández, 58, bajo
Elche - Alicante
Código postal: 03201
© 2026 Vivienda Plus ● Nota legal ● Privacidad ● Cookies ● Mapa Web ● Diseño: Mediaelx
En primer lugar, gracias por contactarnos.
Hemos recibido su solicitud con respecto a la referencia de propiedad:00558. Uno de nuestros agentes se pondrá en contacto con usted lo antes posible.
En primer lugar, gracias por contactarnos.
Hemos recibido una solicitud de informe si baja el precio de la propiedad con la referencia: 00558
Mientras tanto, eche un vistazo a esta selección de propiedades similares que podrían ser de su interés:
¿Necesitas vender antes de comprar?
Te ayudamos al vender tu casa al máximo precio y sin preocupaciones
¡Quiero vender!