Presentamos un magnífico local comercial ubicado junto al Gran Teatro de Elche, a pocos metros de la Glorieta y del Centro de Congresos. Con posible conversión a dos viviendas, con una superficie construida de 185 m² útiles, este espacio destaca por su amplitud y versatilidad, adaptándose tanto a proyectos comerciales como a una futura conversión.
✨ Oportunidad única de inversión en espacio versátil y transformable en el centro de Elche ✨
Este inmueble combina funcionalidad, diseño y rentabilidad. Se trata de un local comercial con entresuelo, actualmente habilitado como oficinas modernas y luminosas, pero con una gran ventaja: ambos niveles son convertibles en vivienda.
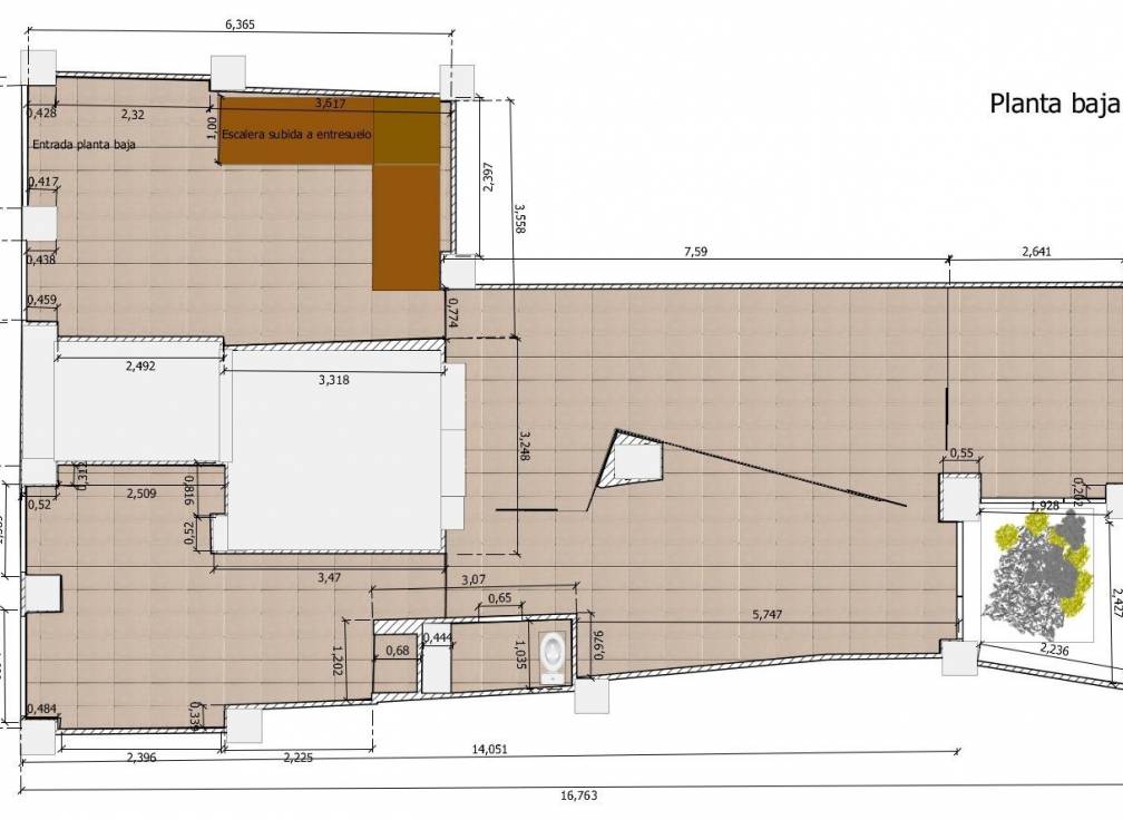
Planta baja: Espacio diáfano con acceso directo desde la calle, ideal para reconvertir en una vivienda tipo loft o mantener como despacho profesional.
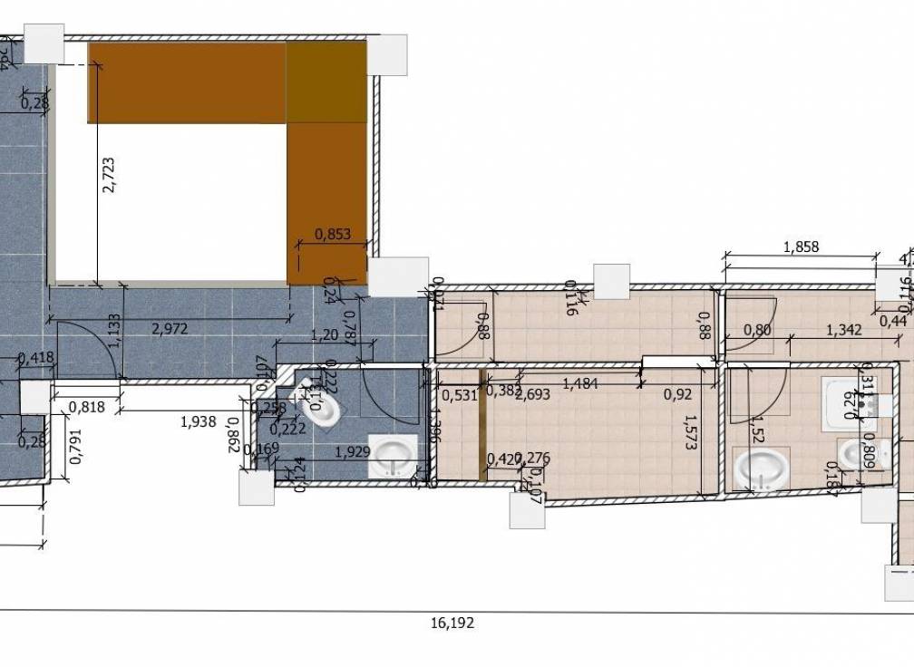
Entresuelo: Distribución óptima para una vivienda de tres dormitorios, baño completo, vestidor y cocina. Su diseño actual como oficina permite una transformación sencilla y económica.
Totalmente listo para iniciar cualquier actividad, el local cuenta con cinco estancias multifuncionales, perfectas para oficinas, despachos o áreas administrativas, además de tres baños. Su excelente accesibilidad, junto con su cercanía a zonas de gran tránsito y diversos parkings públicos, lo convierten en una opción inmejorable para emprendedores e inversores.
Una oportunidad única en el corazón de la ciudad. ¡No la deje escapar!

Esta información que se proporciona aquí está sujeta a errores y no forma parte de ningún contrato. La oferta se puede cambiar o retirar sin previo aviso. Los precios no incluyen los costes de compra
En vivienda plus trabajamos de manera incansable para que usted tenga a su disposición un amplio catálogo de propiedades con la mejor relación calidad-precio posible. Su bienestar, es nuestra recompensa
Ver todas las propiedadesDirección
C/ Poeta Miguel Hernández, 58, bajo
Elche - Alicante
Código postal: 03201
© 2026 Vivienda Plus ● Nota legal ● Privacidad ● Cookies ● Mapa Web ● Diseño: Mediaelx
En primer lugar, gracias por contactarnos.
Hemos recibido su solicitud con respecto a la referencia de propiedad:01490. Uno de nuestros agentes se pondrá en contacto con usted lo antes posible.
En primer lugar, gracias por contactarnos.
Hemos recibido una solicitud de informe si baja el precio de la propiedad con la referencia: 01490
Mientras tanto, eche un vistazo a esta selección de propiedades similares que podrían ser de su interés:
¿Necesitas vender antes de comprar?
Te ayudamos al vender tu casa al máximo precio y sin preocupaciones
¡Quiero vender!